
Electrolux KMFD264TEX
Celkový objem : 25,37 lMikrovlnný výkon : 900 W
15 990,-

Franke FMY 45 MW XS Černé sklo/Nerez
Celkový objem : 40 lMikrovlnný výkon : 900 W
25 190,-
- strana:
- 7
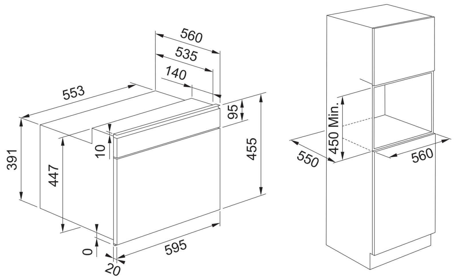
Vestavná kompaktní multifunkční trouba s mikrovlnami z řady Mythos. Provedení černé sklo, nerezový interiér. Kapacita 40 litrů. Nabízí 25 (8 Manuálních funkcí, 10 Cook Assist funkcí, 7 Speciálních funkcí). LCD bílý displej + 2 Ovládací zamačkávací knoflíky. Smooth 2 Close dvířka. Součástí je napařovací nádoba. Výkon mikrovlnného ohřevu 900 W. Příkon grilu 1 600 W.
| Celkový objem: | 40 l |
|---|---|
| Příkon mikrovlnné trouby: | 1600 W |
| Mikrovlnný výkon: | 900 W |
| Gril: | ANO |
| Úrovně výkonu: | 7 |
| Průměr otočného talíře: | 36 cm |
| Šířka: | 59,5 cm |
| Výška: | 49,5 cm |
| Hloubka: | 56 cm |
| Barva: | Nerez |

